top of page
PERRYWOOD GARDEN CENTRES
PERRYWOOD GARDEN CENTRES SUDBURY
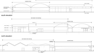
After clients acquired this 34acre former Wyevale Garden Centre, Pleydell Smithyman prepared a site strategic masterplan and gained a wide-ranging planning approval for a new build garden centre and associated retail and leisure activities on the site, and provided architectural services for the first phase of development.

bottom of page





















